
Maître d'ouvrage
Architectes
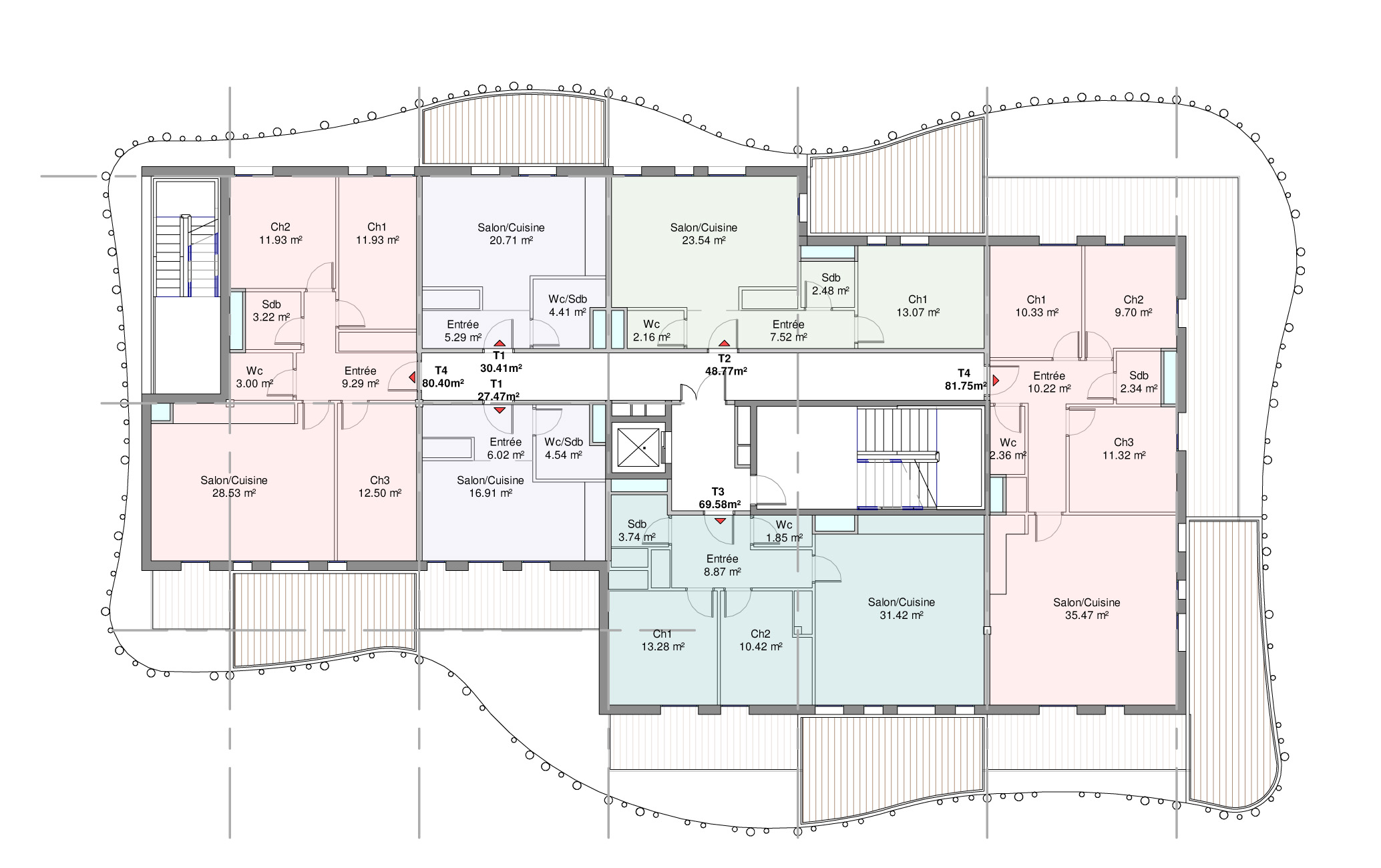
Surfaces
Montant des travaux
Livraison
ZAC Enova
Origin + Sight
7 990 m² d'espaces tertiaires dont 2 000 m² réversibles logements, 700 m² de commerces
19,6 M€ HT
Concours 2021
Premier pôle économique du Sicoval, Labège Innopole entame sa mue avec la création de la ZAC Enova. Situé aux portes de Toulouse, le quartier attire de nombreuses entreprises dans les domaines de la biotechnologie et du numérique et offre une bonne mixité d’usages entre tertiaire, commerces et enseignement supérieur. Ses deux lacs arborés ainsi qu’une offre importante de commerces en font une destination des Toulousains pour les services et les loisirs.


Entre l’alignement le long de la Pyrénéenne et la
diagonale plantée, le projet opère une transition ville / parc à travers un coeur d’îlot franchissable et vivant. Cet îlot de fraîcheur arboré est mis en scène par un généreux porche en double hauteur qui le rend visible depuis la rue et invite les piétons à le parcourir.
L’écriture architecturale installe une trame régulière en façade. Celle-ci ouvre le champ des possibles : elle permet d’aménager des espaces tertiaires, des vitrines commerciales, du parking, ou encore des loggias plantées. Ce système ouvert à la métamorphose met en avant deux postulats du projet que sont la mixité et la réversibilité du programme.
Situé au coeur du village numérique, le lot C12 occupe un angle fortement visible depuis le carrefour de la Pyrénéenne. Avec les ilots attenants, il contribue à la nouvelle écriture urbaine du quartier, qui par ses alignements le long de la Tolosane et ses hauteurs construites jusqu’à R+7, contraste avec les implantations plus libres et les constructions plus basses existantes. Ce caractère bâti plus diffus se retrouve sur la façade opposée de l’ilot, côté Diagonale : ce parc linéaire qui traverse le village numérique du Nord au Sud. L’inscription du projet entre la Tolosane et la Diagonale lui confère un rôle de transition, la transition entre ville et parc, entre espaces tertiaires et de détente, de promenade et de loisirs.



Avec leurs commerces et leurs espaces en Rez-de-chaussée qui s’ouvrent sur le parc, les pavillons complètent la composition et assurent l’interface avec la diagonale. Ils arborent des courbes élégantes et une façade en bois dont l’expression de verticalité dialogue avec la trame de la couronne bâtie. Ils sont conçus pour un usage tertiaire ou de logement.


Le projet proposé s’implante en limites de propriété le long des
voies. Il tient l’angle Nord et remplit sa fonction de repère urbain avec un volume en R+6 couronné de
loggias plantées. L’épannelage est
ensuite descendant progressivement vers le coeur d’îlot.
Ce travail de la volumétrie dégage une silhouette reconnaissable qui marque les deux angles
remarquables et évoque une transition progressive de la
Tolosane vers la diagonale.
La réversibilité est au coeur du projet, avec des parkings 100% réversibles en espaces de travail. De même, les pavillons sont des espaces de bureaux 100% réversibles en logements.

Parkings 100% réversibles bureaux

Pavillons aux surfaces dédiées bureaux 100% réversibles logement
Le projet a fait l'objet d'une approche bio-climatique et circulaire. Les façades sont épaisses, constituées de béton blanc bas carbone et de baies en triple vitrage ventilé avec stores intégrés pour les façades les plus exposées. La toiture de l’aile Nord est dédiée à la production photovoltaïque, alors que l’aile Sud reçoit une pergola végétalisée.
Les pavillons privilégient les matériaux biosourcés, durables, à faible empreinte carbone. La structure est à ossature bois, avec un socle rez de chaussée et un noyau vertical, en béton bas carbone ou en béton d’argile pour le pavillon 2. Les façades en ossature bois reçoivent un bardage bois teinté à coeur en finition extérieure. L’isolation est prévue en panneau rigide fibre de bois. Afin de souligner la transition vers le parc et ses espaces naturels, de matérialiser un élancement vertical et d’affirmer une écriture architecturale singulière, les pavillons s’habillent de troncs d'arbres bruts. Ils enveloppent délicatement les bâtiments en suivant des mouvements courbes.

Il contraste entre un urbanisme efficace, rationnel et fonctionnel, et l’intégration de la biodiversité et de la nature, avec des espaces de respiration.
D’un côté les bureaux, purs volumes urbains blancs lumineux et minéraux, de l’autre, les pavillons plantés comme une forêt, rejoignent cette diagonale verte qui traverse la ville.
Les matérialités blanches permettent de créer un albedo faible et donc de ne pas faire surchauffer la ville.
Sight — Architecture et Design Studio © 2023 (Mentions légales)
contact@sight-studio.fr +33 5 61 52 84 94